top of page
PLANT RIVERSIDE DISTRICT
LOCATION | Savannah GA.
SIZE | Master Planned Entertainment District
PROJECT TYPE | Food & Beverage
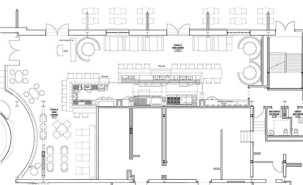
OVERVIEW | This Restoration Hardware project, situated in the vibrant riverfront district of downtown Savannah, is an innovative hospitality and entertainment destination within the iconic Power Plant. The adaptive reuse of this historic structure creates a dynamic space that blends the charm of Savannah's rich heritage with contemporary luxury. Featuring a collection of distinctive restaurant venues, each concept is designed to cater to diverse target markets, offering unique dining experiences and atmospheres to appeal to both locals and visitors.




1/8
bottom of page














